Page suivante
Page précédente
Bormes-les-Mimosas (83230)

Maison

536 000 €
Réf 1458.153

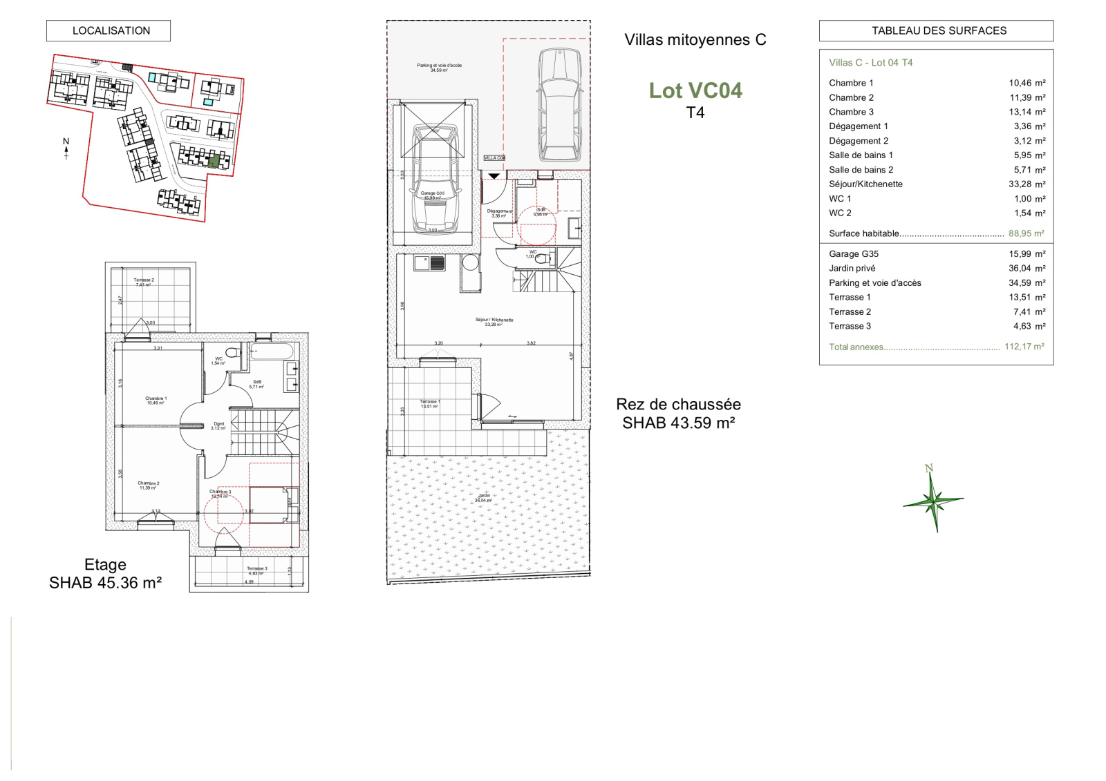
Située dans un environnement calme et résidentiel de Bormes-les-Mimosas, cette maison neuve T4 en duplex, mitoyenne des deux côtés, offre 88,65 m² de surface habitable et de beaux espaces extérieurs.

Au rez-de-chaussée, vous découvrirez un séjour avec cuisine ouverte de 33 m², lumineux et donnant directement sur une terrasse de 13,51 m² ainsi qu’un jardin privatif de 36 m², parfait pour profiter du climat méditerranéen. Ce niveau comprend également une salle de bain, des WC séparés, un garage et une place de stationnement privative devant la maison.

À l’étage, l’espace nuit se compose de trois chambres, dont deux disposent chacune de leur terrasse privative, offrant une agréable vue dégagée. Une salle de bains et des WC séparés complètent cet étage pour encore plus de confort.

La maison bénéficie d’un emplacement recherché : écoles accessibles à pied, premiers commerces à proximité et plages de Bormes-les-Mimosas à quelques minutes.

Une opportunité idéale pour une résidence principale ou secondaire dans un cadre paisible et privilégié.

Conforme à la RE 2020 et certifiée NF Habitat HQE

Annonce proposée par un agent commercial

Bilan énergétique

Diagnostics énergetiques
A propos de ce bien Caractéristiques de ce bien
  • Surface 88,65 m²
  • carrez 88,65 m²
  • séjour 33 m²
  • 3 chambre(s)
  • 2 salle(s) de bain
  • cuisine américaine
  • 1 garage(s)
  • exposition Sud
  • 2 côté(s) mitoyen(s)
  • 2 niveau(x)
  • terrasse
  • accès handicapé

Composition

Composition de ce bien

Rez-de-chaussée

  • chambre 10.46 m²
  • chambre 11.39 m²
  • chambre 13.14 m²
  • salle de bain 5.71 m²
  • salon/sejour 33.28 m²
  • WC 1 m²
  • chambre 1.54 m²
  • salle de bain 5.95 m²
  • garage 15.99 m²
  • jardin 36.04 m²
  • terrasse 13.51 m²
  • terrasse 4.63 m²
  • terrasse 7.41 m²

Financier

Informations financières
Prix de vente honoraires TTC inclus 536 000 €

Autour du bien

Découvrez le quartier

Simulation

Calcul des mensualités
* Champs obligatoires
DA SILVA Agence