Page suivante
Page précédente
Toulon (83000)

Appartement

308 246 €
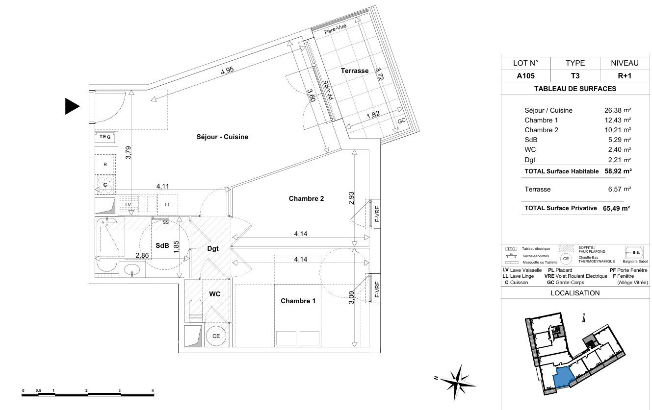
Réf A105

Situé dans une résidence de 30 logements, cet appartement de type T3 offre une surface de 59 m².

Il se trouve au premier étage d'un immeuble qui en compte trois et bénéficie d'une exposition plein sud. Une terrasse de 6,57 m² permet de profiter d'un extérieur agréable et lumineux. Le bien inclut également deux places de stationnement en sous-sol, offrant un confort supplémentaire pour le stationnement d'un véhicule.

L'appartement est situé dans le quartier résidentiel de La Palasse à Toulon Est. Ce secteur calme et agréable est particulièrement pratique grâce à sa proximité avec les axes autoroutiers, permettant des déplacements rapides. Les commerces sont accessibles à pied et l'hôpital Sainte-Musse se trouve à quelques minutes seulement.

Possibilité d'acquérir le bien en TVA à 5,5% selon profil acquéreur. Cet emplacement privilégié en fait un choix idéal pour une résidence principale ou un investissement locatif.

Les informations sur les risques auxquels ce bien est exposé sont disponibles sur le site Géorisques : www.georisques.gouv.fr.

Annonce proposée par un agent commercial

Bilan énergétique

Diagnostics énergetiques
A propos de ce bien Caractéristiques de ce bien
  • Surface 58,92 m²
  • 2 chambre(s)
  • cuisine américaine
  • 1er étage
  • 3 étage(s)
  • ascenseur

Financier

Informations financières
Prix de vente 308 246 € Les honoraires d'agence seront intégralement à la charge du vendeur

Autour du bien

Découvrez le quartier

Simulation

Calcul des mensualités
* Champs obligatoires
DA SILVA Agence