Page suivante
Page précédente
Hyères (83400)

Maison 6 pièce(s) 4 chambre(s) 158.2 m²

2
1
521 m²
649 000 €
Réf DS-3708

Venez découvrir cette villa individuelle de 158m² dans le quartier prisé des Salins, et profitez de la vue mer depuis l'étage.

Elle est divisée en deux appartements T3 :

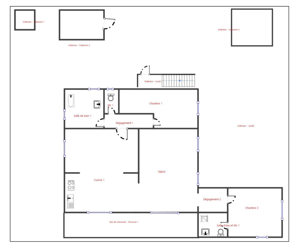
- Rez de villa : Terrasse, jardin, une suite parentale avec salle d'eau et WC, une salle de bains, un salon/salle à manger, une cuisine, un WC indépendant

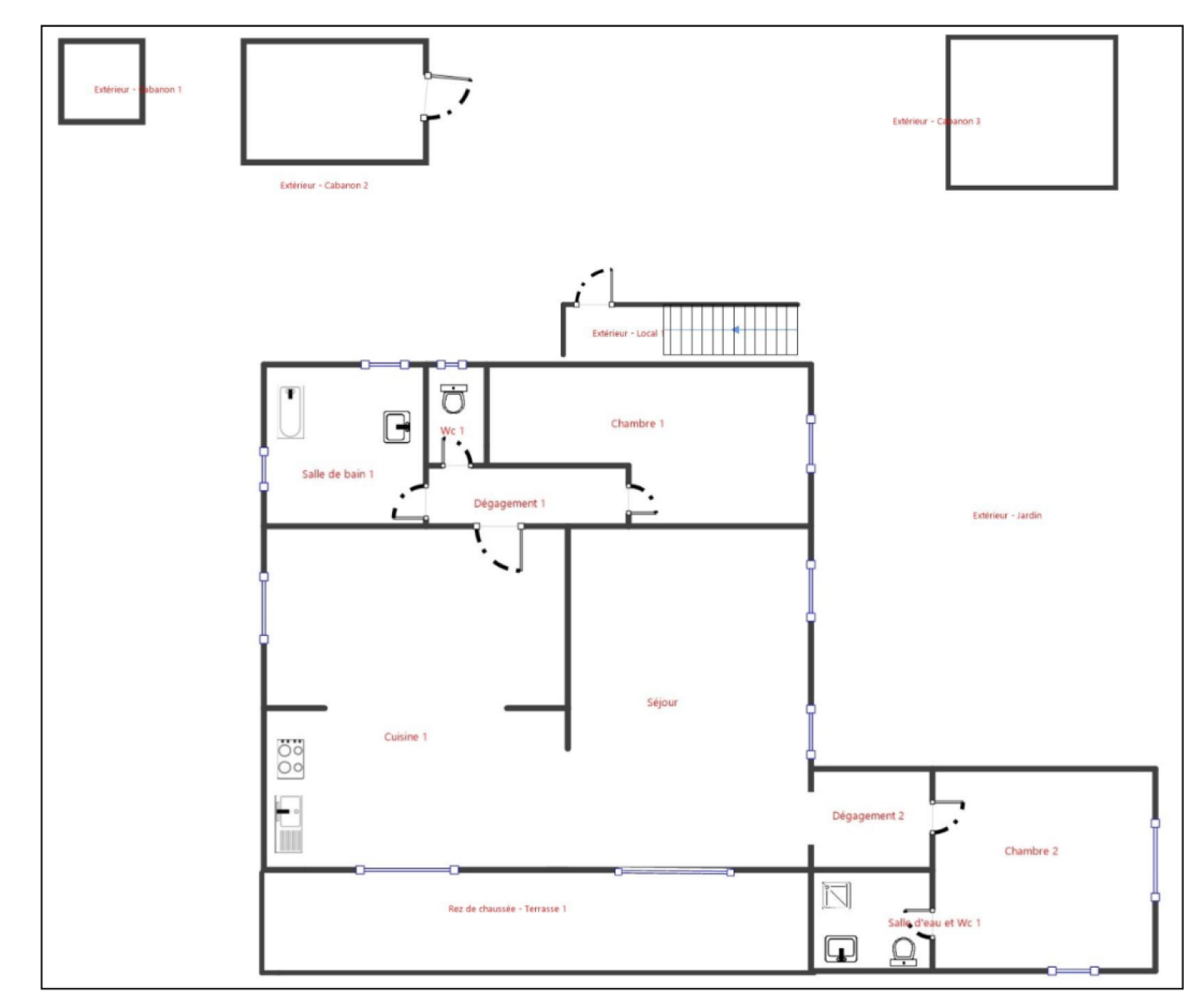
- Haut de villa : Terrasse vue mer, jardin, deux chambres, une salle de bains, un salon/salle à manger, une cuisine, un WC indépendant

La propriété est équipée de deux entrées indépendantes avec portails et deux entrées indépendantes pour les habitations.

Idéale pour résidence principale, regroupement familial, investissement locatif/saisonnier.

Vous avez le luxe de profiter de la mer à quelques pas.

Prévoyez quelques rafraîchissements.

Information importante : la propriété est soumise à un bail privé.

Contactez-moi pour organiser une visite et tomber sous le charme de cette maison !

Les informations sur les risques auxquels ce bien est exposé sont disponibles sur le site Géorisques : www.georisques.gouv.fr.

Annonce proposée par un agent commercial


Zone soumise à une obligation légale de débroussaillement.
Les informations sur les risques auxquels ce bien est exposé sont disponibles sur le site Géorisques

Bilan énergétique

Diagnostics énergetiques
A propos de ce bien Caractéristiques de ce bien
  • Surface 158,20 m²
  • carrez 158,20 m²
  • terrain 521 m²
  • 4 chambre(s)
  • 2 salle(s) de bain
  • 1 salle(s) d'eau
  • construit en 1995
  • cuisine américaine (équipée)
  • exposition Sud
  • 1 niveau(x)
  • vue Dégagée
  • terrasse
  • arboré
  • interphone

Composition

Composition de ce bien

Rez-de-chaussée

  • WC 1.85 m²
  • chambre 10.85 m²
  • salon/sejour 24.9 m²
  • Dégagement 3 m²
  • chambre 14.1 m²
  • Salle d'eau+WC 3.05 m²
  • cuisine 19.6 m²
  • Dégagement 2.55 m²
  • salle de bain 7.2 m²

Etage 1

  • entrée 4.55 m²
  • chambre 9.5 m²
  • salon/sejour 27.6 m²
  • cuisine 7.9 m²
  • chambre 12.05 m²
  • salle de bain 7.5 m²
  • WC 2 m²

Financier

Informations financières
Prix de vente 649 000 € Les honoraires d'agence seront intégralement à la charge du vendeur
Charges 161 €
Taxe foncière annuelle 2 655 €

Autour du bien

Découvrez le quartier

Simulation

Calcul des mensualités
* Champs obligatoires
DE SIMON Agence