Page suivante
Page précédente
La Seyne-sur-Mer (83500)

Appartement 2 pièce(s) 1 chambre(s) 39.2 m²

1
Balcon
Ascenseur
270 000 €
Réf DE-1458.160

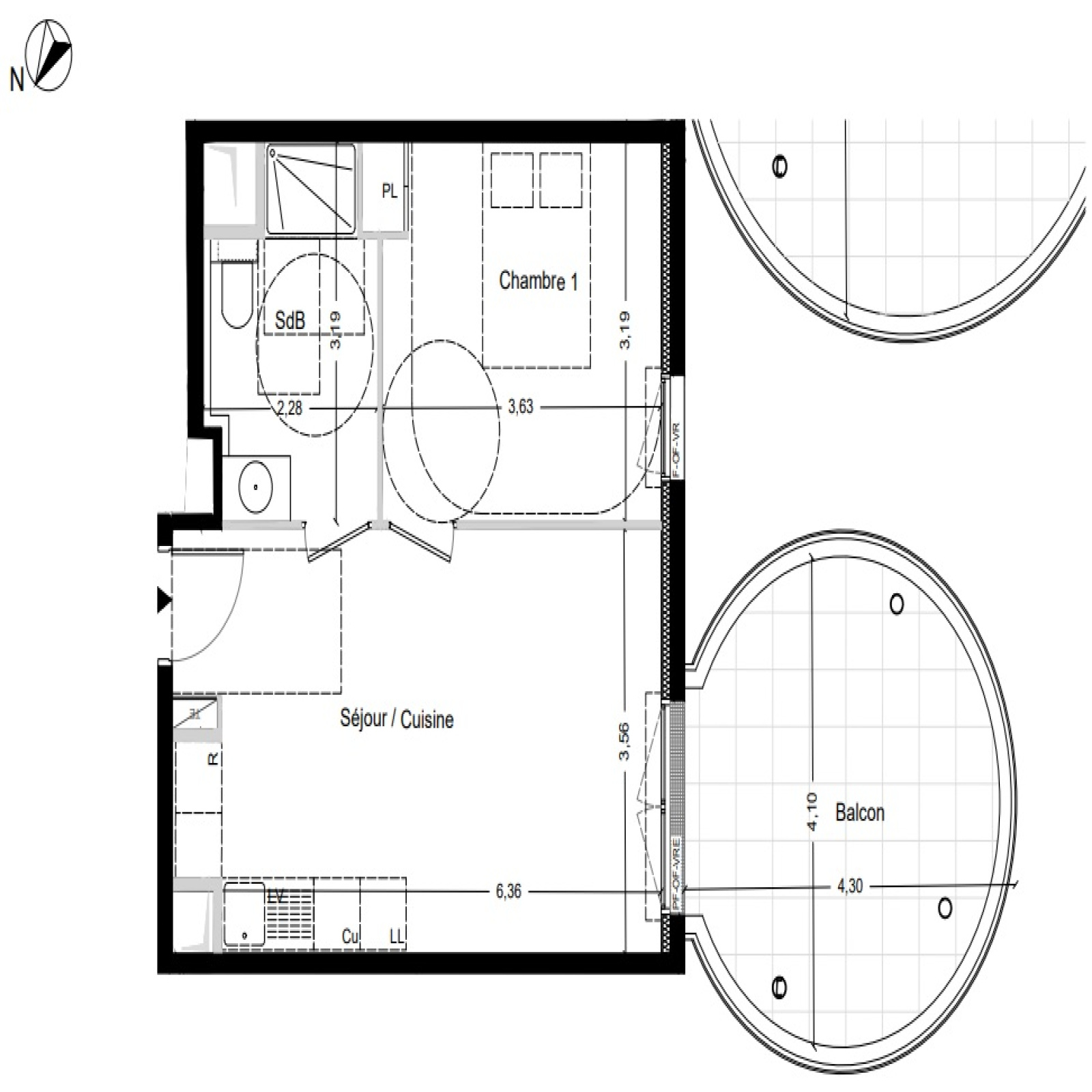
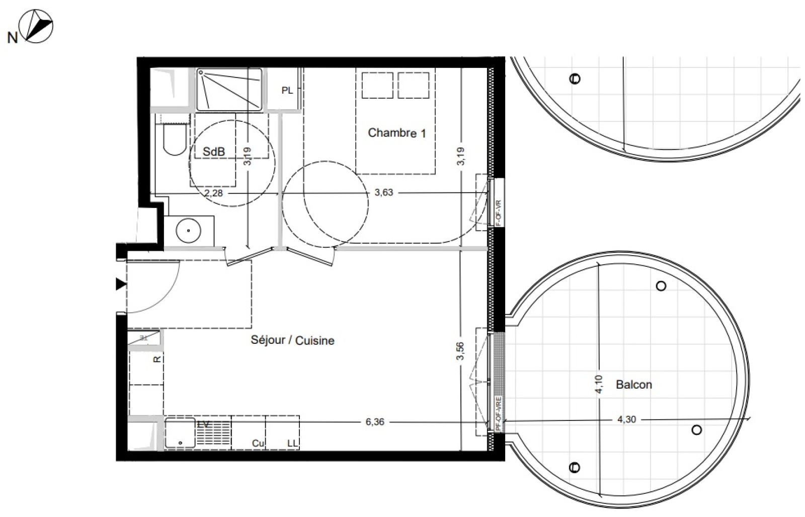
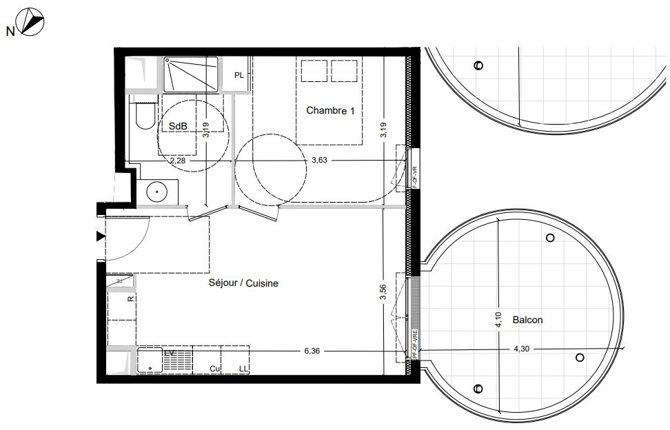
T2 neuf – 39m² – Terrasse 15m² – Dernier étage – Exposition plein sud – Corniche de Tamaris

Situé sur la très prisée corniche de Tamaris, à La Seyne-sur-Mer, entre mer et nature, découvrez ce superbe appartement T2 de 39,20 m², au 4ᵉ et dernier étage d’une résidence récente et sécurisée.

Bénéficiant d’une exposition plein sud, ce bien offre une luminosité exceptionnelle tout au long de la journée.

Il se compose de :

  • Une agréable pièce de vie avec cuisine ouverte
  • D'une chambre confortables : 11,80 m²
  • Une salle de bains moderne

Vous profiterez également d’une belle terrasse de 15m², exposée plein sud et avec une vue sur le bois classé de la résidence. Idéale pour vos repas en extérieur et moments de détente.

À seulement quelques minutes de la Plage des Sablettes et du centre-ville, l’emplacement est parfait pour concilier tranquillité et proximité des commodités.

Un stationnement privatif en sous-sol complète ce bien, un véritable atout dans ce secteur recherché

Annonce proposée par un agent commercial

Bilan énergétique

Diagnostics énergetiques
A propos de ce bien Caractéristiques de ce bien
  • Surface 39,20 m²
  • carrez 39,20 m²
  • séjour 22 m²
  • 1 chambre(s)
  • 1 salle(s) de bain
  • construit en 2026
  • cuisine américaine
  • Chauffage individuel : autre (autre)
  • 1 garage(s)
  • exposition Sud
  • 1 niveau(x)
  • 4ème étage
  • 4 étage(s)
  • ascenseur
  • balcon
  • interphone
  • accès handicapé

Composition

Composition de ce bien

Rez-de-chaussée

  • chambre 11.8 m²
  • salon/sejour 22.2 m²
  • salle de bain 6.2 m²
  • balcon 15.1 m²

Info copro

Copropriété
  • Copropriété Oui
  • Nombre de lots 93

Financier

Informations financières
Prix de vente 270 000 € Les honoraires d'agence seront intégralement à la charge du vendeur

Autour du bien

Découvrez le quartier

Simulation

Calcul des mensualités
* Champs obligatoires
DA SILVA Agence