Page suivante
Page précédente
La Garde (83130)

Appartement

299 000 €
Réf 1458.152

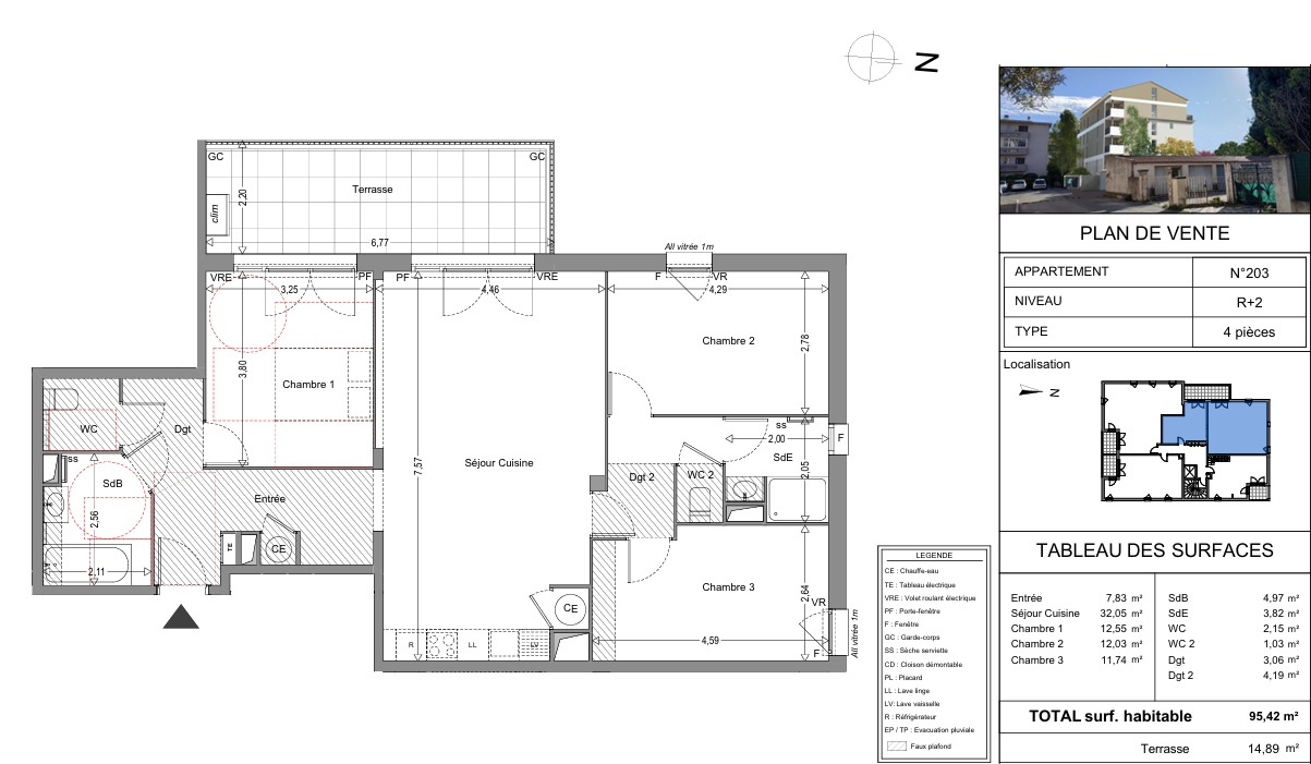
À La Garde, dans le quartier calme et résidentiel des Savels, découvrez ce bel appartement T4 neuf de 95,42 m², situé au 2ᵉ étage sur 4 d’une résidence sécurisée conforme à la réglementation RE 2020, à seulement 1 km du centre-ville et de toutes les commodités (commerces, écoles, bus, pistes cyclables).

Cet appartement de 4 pièces offre des volumes généreux et une distribution idéale pour une vie de famille :
Séjour/cuisine lumineux et convivial, avec cuisine ouverte sur le salon
Grande terrasse exposée ouest d’environ 15 m², parfaite pour les repas en extérieur et les couchers de soleil
Trois chambres confortables de 11,74 à 12,55 m²
Une salle de bain, une salle d’eau et deux WC pour plus de confort

Les prestations sont modernes et soignées :
Pompe à chaleur réversible dans le séjour
Chauffages électriques dans les chambres
Volets roulants électriques dans la pièce de vie, volets manuels dans les chambres
Résidence sécurisée avec local à vélos
Deux stationnements en sous-sol inclus dans le prix

Ce bien est proposé dans le cadre du Bail Réel Solidaire (BRS), un dispositif innovant permettant d’accéder à la propriété à prix réduit.
Le principe : vous devenez propriétaire du logement, tandis que le terrain reste la propriété d’un Organisme Foncier Solidaire.
Ce dispositif est soumis à conditions de ressources.

Contactez-nous pour vérifier votre éligibilité et découvrir les nombreux avantages du BRS.
Un cadre de vie agréable, une résidence moderne et un emplacement privilégié : le confort au cœur de La Garde.

Annonce proposée par un agent commercial

Bilan énergétique

Diagnostics énergetiques
A propos de ce bien Caractéristiques de ce bien
  • Surface 86,54 m²
  • carrez 95,42 m²
  • séjour 32 m²
  • 3 chambre(s)
  • 1 salle(s) de bain
  • 1 salle(s) d'eau
  • Chauffage individuel : convecteur (electrique)
  • exposition Sud
  • 1 niveau(x)
  • 2ème étage
  • 4 étage(s)
  • terrasse

Composition

Composition de ce bien

Rez-de-chaussée

  • salon/sejour 32.05 m²
  • chambre 12.55 m²
  • chambre 12.03 m²
  • chambre 11.74 m²
  • salle de bain 4.97 m²
  • salle de bain 3.82 m²
  • WC 2.15 m²
  • WC 1.03 m²

Financier

Informations financières
Prix de vente honoraires TTC inclus 299 000 €

Autour du bien

Découvrez le quartier

Simulation

Calcul des mensualités
* Champs obligatoires
DA SILVA Agence